Műanyag mellékbejárati ajtó - átjáró szélesség 840 mm
A REHAU Smartline+ egyszárnyú mellékbejárati ajtók alkalmasak a kertbe, garázsba való bejutáshoz vagy üzletek és raktárak hátsó bejárataként. Családi házak esetében hagyományos bejárati ajtóként is használható, de nem ajánlott középületekbe vagy társasházakba, ahol nagyobb a mozgás gyakorisága. A főbajárati ajtóhoz képest, amelyet a konfigurátoron keresztül megrendelésre szállítunk, olcsóbb, de nem rendelkezik széles szárnnyal, és csak befelé nyítható. A mellékbejárati ajtót a következő méretekkel kínáljuk: szélesség 98 cm, magasság 208 cm, átjáró szélesség 84 cm.
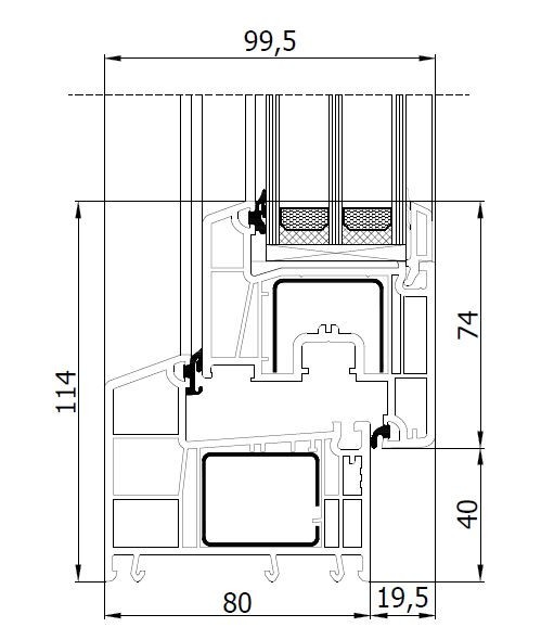
Mindkét oldaluk fehér. A kilincse és a pánttakarók szintén fehérek. Az ajtó hőátbocsátási tényezője Uw=1,3 W/m²K.
Amennyiben más dekorációra, más méretre, három rétegű üvegezésre vagy díszüvegre van szüksége, rendelje meg a konfigurátoron keresztül).
Általános felszereltség:
többpontos vasalat,
keret,
kétoldalas arretáló kilincs (ennél a kivitelnél nem lehet kilincs-gomb változatra cserélni),
alacsony alumínium küszöb (mint a normál bejárati ajtóknál),
3 kulccsal ellátott zár,
befelé nyíló kivitel,
„Műanyag ablakok, ajtók és tartozékok használati útmutatója“ dokumentum.
Výplně
A vízszintes keretmerevítő alatt teljes PUR betét (rajzon szürkével jelölt felület).
Keresztmerevítő felett középen két fatörzs mintázatú átlátszó üvegtábla, U=1.1 (rajzon kékkel jelölt felület).
Gyártás és profilrendszer:
5 kamrás német REHAU AG + Co. profilrendszer
A horganyzott acél megerősítések biztosítják az ablakok merevségét és stabilitását.
Építési mélység 80 mm, a keskenyebb profilok több fényt biztosítanak.
Klasszikus kialakítás - a szárnyak és a keretek modern, egyenes megjelenésűek (a készleten lévő ajtók klasszikusak, ha a lekerekített formát részesíti előnyben, rendelje meg a konfigurátoron keresztül).
Nagyon jó hőszigetelés - standard dupla üvegezés esetén a teljes ajtón keresztüli hőátbocsátási tényező Uw=1,3 W/m²K (ha jobb hőszigetelési tulajdonságokra van szüksége, rendelje meg a REHAU Smartline+ ajtókat a konfigurátoron keresztül).
az EPDM szigetelés előnye, hogy öregedéssel és időjárással szemben rendkívül ellenálló. Az ablakok így évek múlva is szigeteltek.
a termék élettartama évtizedekben mérhető, és amennyiben idővel szükségessé válik a szigetelés cseréje, úgy az nagyon olcsón megoldható. Műanyag erkélyajtóink speciális hornyainak köszönhetően az eredeti szigetelés egyszerűen kivehető és az új szigetelés könnyen behelyezhető. Olcsó, gyors és egyszerű.
Merevítés:
A bejárati ajtó alapkivitelben erősítésekkel van felszerelve, amelyek mind a tokba, mind a szárnyba be vannak építve.
A merevítések anyaga korrózióálló horganyzott acél.
A merevítés vastagsága 1-2 mm (mérettől, típustól és kiviteltől függően).
Üvegezés
A termék a DOVISTA csoport vagy a brit Pilkington márka szigetelőüvegével van felszerelve.
Standard kététegű üvegezés Ug=1,1 W/m²K hőáteresztési tényezővel.
Új hangszigetelt üveg - 33 dB.
Az üvegezés 600 méteres tengerszint feletti magasságig alkalmas a beépítésre. Nagyobb magasságban történő beépítés esetén kérjük, vegye fel a kapcsolatot ügyfélszolgálatunkkal.
Vasalat
Winkhaus (activPilot termékcsalád) gyártású teljes kerület mentén található német vasalatrendszer
Biztonsági pontok csökkentik az illetéktelen behatolás veszélyét és növelik a felhasználó kényelmét.
Hibás működtetést gátló biztosíték.
Nyolcszögletű zárócsap - gombafej (a gombafej elfordításával könnyen szabályozható a szorítóerő).
Fékező csapágy (dörzsfékkel ellátott ollócsapágy, mely lelassítja a szárny mozgását).
Az illetéktelen behatolás elleni védelmet biztosító két biztonsági ellenlemez alapfelszerelésként növeli az ablakok biztonsági szintjét.
Széles szabályozási terjedelem az esetleges beépítési pontatlanság ellensúlyozására.
Megerősített pántok (szárnyak teherbírása akár 120 kg).
Készreszerelés, ellenőrzés, tanúsítványok:
a készreszerelés az osztrák GRUBER&CO Group vállalat modern automatizált gyártósorain történik.
A Dovista cégcsoport saját ellenőrző intézettel rendelkezik. Naponta több alkalommal szúrópróba szerűen kiválasztásra kerül egy ablak, és ellenőrzik a paraméterei követelményeknek való megfelelését. (Profilrendszer elsődleges vizsgálata: mérettulajdonságok vizsgálata, tágulás vizsgálata magas hőmérséklet mellett kemencében, fagyáspont alatti hőmérsékleten végzett vizsgálat, alakellenőrzés, behajlás vizsgálat, felület-ellenőrzés, hegesztési szilárdság ellenőrzése, adott pontra irányuló erőhatás vizsgálat. A késztermék elsődleges vizsgálata: vízzárás, légáteresztés, szélállóság stb.).
A vállalat a termékek minőségét egy független állami vizsgáló laboratóriummal is ellenőrizteti, amely megerősíti az általunk szállított termékek minőségét és paramétereit (lásd a jelenlegi tanúsítványokat).
Tisztában vagyunk azzal, hogy mit kínálunk, meggyőződtünk termékeink minőségéről. Ezért szívesen állunk rendelkezésére annak a több mint 50.000 ügyfelünknek a referenciával, akiket Csehországban, Szlovákiában, Ausztriában, Németországban és Magyarországon ez ideig kiszolgáltunk.
Eddig még nem érkezett róla hozzászólás