A REHAU Smartline + és REHAU SYNEGO AD erkélyajtók tulajdonságai
A raktárunkon különböző méretű egyszárnyú és kétszárnyú erkélyajtók közül is választhat, amelyek kétrétegű szigetelő üveggel érhetőek el. Amennyiben más színű vagy méretű, illetve háromrétegű vagy katedrál üveggel készült erkélyajtót vásárolna, a konfigurátor segítségével egyszerűen megtervezheti.
Kétféle profilrendszerű erkélyajtókat értékesítünk
A konfigurátorban három profilrendszer közül választhat – REHAU Smartline+, REHAU SYNEGO AD és REHAU SYNEGO MD. Az első két profil megrendelhető a klasszikus, egyenes szárnyú, vagy a Round Line, lekerekített szárnyú változatban. A REHAU SYNEGO MD profilja csak egyenes kialakítású.
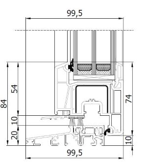
REHAU SMARTLINE+ profilrendszer
A német REHAU AG + Co. cég ötkamrás profilrendszere. Kiváló ár/minőség arányt kínál. A REHAU Smartline+ erkélyajtók alapfelszereltségként dupla üvegezéssel (3 mm) kerülnek szállításra, a konfigurátorban lehetőség van három rétegű üvegezés és meleg távtartó keret kiválasztására, amely csökkenti a pára kicsapódás előfordulását és javítja a szigetelési tulajdonságokat.A REHAU Smartline+ erkélyajtók teljes Uw hőátbocsátása a következő:
- Kétrétegű üvegezés és acél távtartó keret esetén Uw=1,3 W/m²K.
- Háromrétegű üvegezés és TGI műanyag távtartó keret esetén Uw=0,90 W/m²K.
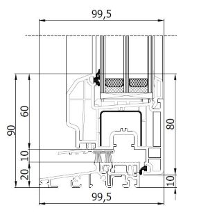
REHAU SYNEGO AD profilrendszer
Amennyiben alacsony energiaigényű vagy passzív házat épít, az online szerkesztőben a német REHAU AG + Co. vállalat hatkamrás SYNEGO profilrendszerét javasoljuk, mivel az jobb szigetelőtulajdonságokkal rendelkezik, mint a PREMIUM.A REHAU SYNEGO AD erkélyajtók már eleve Ug=0,5 W/m²K hőátbocsátási tényezőjű vasalt, háromrétegű (4 mm) üveggel vannak ellátva. A teljes ajtó hőátbocsátási tényezője Uw=0,78 W/m²K (háromrétegű üveg és műanyag távtartókeret alkalmazása esetén). Felár ellenében a párásodást minimalizáló továbbfejlesztett melegperemes távtartókerettel is megrendelhető. MOST AKCIÓ: a műanyag melegperemes keret felármentes.
Erkélyajtók PREMIUM és REHAU SYNEGO AD
- Klasik és round line kivitelezésben
- Akadálymentes alumínium küszöbbel is rendelhető.
- 6 kamrás profil.
- Beépítési mélysége 80 mm.
- Hibás működtetés gátlóval ellátva.
- Vasalt Winkhaus activPilot.
- 29 színben és dekorral választható.
Tanúsítványok
Profilrendszer REHAU SYNEGO MD
Az erkélyajtók legjobb szigetelése a REHAU SYNEGO MD profilrendszerben. Az ajtók hármas üvegezéssel vannak ellátva, melegperemes, üvegközi kerettel, és hármas tömítéssel rendelkeznek (ebben különböznek a REHAU SYNEGO AD ajtóktól, amelyek kettős tömítéssel kerülnek gyártásra).
Ezenkívül a V-Perfect lapos hegesztést térítésmentesen, alapfelszereltségként biztosítják ügyfeleiknek. Ez a fajta hegesztés nemcsak hogy jobban néz ki, de meg is akadályozza az anyag lebomlását, amely a hegesztés közben megjelenő UV sugárzásból adódhat. Az osztrák Maco (Multi-Matic sorozat) gyártó teljes kerületű szerelvényeit használják.
A konfigurátorban kiválaszthatja az erkélyajtó méreteit és színét, esetleg a katedrálüveget.
A REHAU SYNEGO MD erkélyajtók alapvető paraméterei:
- 7 kamrás profilrendszer a német REHAU AG + Co. KG cégtől
- Építési mélység 80 mm.
- Maco Multi-Matic teljes körű szerelvények biztonsági pontokkal.
- A háromrétegű üvegezés (Ug = 0,5 W/m²K) és a melegperemes, üvegközi keret alapfelszereltségként kerül forgalomba. Teljes hőáteresztés Uw = 0,77 W/m²K.
- Hármas tömítés
- 10 változatban kapható – fehér, antracit (sima és fahatású felület), winchester, paliszander, arany tölgy, olasz dió, mahagóni, babúza tölgy, metálszürke (DB 703).
Standard színek
Az erkélyajtók közös jellemzői
Alacsony alumínium küszöb is választható hozzá
Felár ellenében osztott üveges erkélyajtót is választhat, illetve fix felülvilágítóval és oldalvilágítóval is kiegészíthetjük. Balkon ajtó küszöb 7,2 cm magas, de a konfigurátoron keresztül 2 cm magas akadálymentes alumínium küszöb is választható. Az ajtó csak befelé nyitható és bukó állásban is használható. A kétszárnyú erkélyajtók mindkét ajtaja nyitható, középen pedig nincs tokosztó.Huzatzárral és fogantyúval ellátva
Az ajtókhoz alumínium kilincs tartozik, a külső oldalon pedig fogantyú található. A konfigurátorban Klasik profil esetében kulccsal zárható kétoldali kilincs is rendelhető.
A csomagolás tartalmazza az ajtó színével megegyező takarósapkákat, 5 kamrás 30 mm magas párkányfogadó profilt, valamint az ajtó huzatzárral készült, így nem kell attól tartania, hogy kizárja magát az erlélyre. Az üvegezés 600 m tengerszint feletti magasságig alkalmazható. Amennyiben Ön magasabban fekvő területen építené be, vegye fel velünk a kapcsolatot.

.png)























