Az értékesített műanyag ablakok tulajdonságai
A REHAU profilrendszerek teljes választéka elérhető nálunk
Az ablakokban és ajtókban a német REHAU AG + Co profilrendszereit használják:- legolcsóbb közülük az 5 kamrás REHAU Smartline+ – elérhető a raktárkészletünkön vagy az online konfigurátoton keresztül.
- gazdaságos 6 kamrás profil REHAU Synego AD - csak az online konfigurátoron keresztül érhető el.
- a legmagasabb minőségű és leggazdaságosabb 7 kamrás REHAU Synego MD profil – csak az online konfigurátoron keresztül érhető el.
| Profil típusa | Kamrák száma | Tömítések száma | Üvegezés | Teljes ablak hőátbocsátási tényezője Uw | Megjelenés |
|---|---|---|---|---|---|
| REHAU Smartline+ | 5 | 2 | kétrétegű (háromrétegű a konfigurátoron keresztül) | 1,3 W/m²K (kétrétegű ), 0,90 W/m²K (háromrétegű ) | egyenes, lekerekített |
| REHAU Synego AD | 6 | 2 | háromrétegű | 0,78 W/m²K | egyenes, lekerekített |
| REHAU Synego MD | 7 | 3 | háromrétegű | 0,77 W/m²K | egyenes, V-Perfect forrasztás |
REHAU SMARTLINE+ profilrendszer
- REHAU Smartline+ műanyag ablakok klasszik(egyenes szárnnyal) kivitelben
- REHAU Smartline+ műanyag ablakok elegance (lekerekített szárnnyal) kivitelben
Szeretnék többet megtudni a REHAU Smartline+ ablakok gyártásáról és beszállítóiról.
Plastová okna REHAU Smartline+ műanyag ablakok kiváló ár-érték arányt kínálnak. Hogyan lehetséges ez? Teljesen automatizált gyártás, a legmodernebb technológia alkalmazása és a közvetlenül a megrendelőhöz történő forgalmazás, felesleges köztes lépések nélkül.
A REHAU Smartline+ PVC ablakokat alapesetben dupla üvegezéssel klasszik, azaz egyenes szárnyú kivitelben forgalmazzuk. Ha a lekerekített elülső szárnyat részesíti előnyben, rendelje meg ablakait és ajtóit online konfigurátoron keresztül.
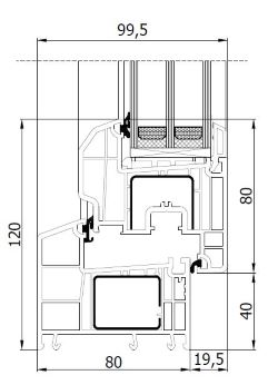
A REHAU Smartline+ ablakok alapvető jellemzői
- A német REHAU AG + Co. 5 kamrás profilrendszere.
- Horganyzott acél megerősítések biztosítják az ablakok merevségét és stabilitását.
- Szerkezeti mélység - 80 mm.
- Hangcsillapítás - 33 dB.
- Remek hőszigetelő tulajdonságok (megtakarítja az energiaköltségeket.
- A termék a DOVISTA csoport vagy a brit Pilkington cég szigetelőüvegével van felszerelve.
- Kettős üvegezés esetén a hőátbocsátási tényező az egész ablakon keresztül Uw=1,3 W/m²K. Ha jobb hőszigetelő tulajdonságokra van szüksége, rendelje meg a REHAU Smartline+ ablakokat a konfigurátoron keresztül, ahol kiválaszthatja a háromrétegű üvegezést, és Uw=0,90 W/m²K hőáteresztési tényezőt érhet el.
- Felár ellenében megrendelhető egy továbbfejlesztett műanyag üvegközti keret, amely minimalizálja a harmat bejutását.
- Az üvegezés 600 méter tengerszint feletti magasságig alkalmas beépítésre. Nagyobb magasságban történő beépítés esetén kérjük, vegye fel a kapcsolatot ügyfélszolgálatunkkal.
REHAU Synego AD profilrendszer
- REHAU Synego AD műanyag ablakok round line kivitelben (lekerekített szárnnyal)
- REHAU Synego AD műanyag ablakok klasszikus kivitelben (egyenes szárnnyal)
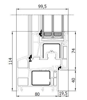
A REHAU Synego AD alapvető jellemzői
- A német REHAU AG + Co SYNEGO profilrendszer.
- 6 kamrás rendszer.
- A lengőtömítések és az előkamrák ötletes felépítése nagy szilárdságot és stabilitást garantál.
- A szerkezeti vastagság 80 mm (nagyobb statikus szilárdság).
- Tökéletes hőszigetelési tulajdonságok.
- Hangszigetelés 34 dB.
- Az ablakok szigetelő üveggel vannak felszerelve, amelyet a DOVISTA vagy a brit Pilkington gyárt.
- Alapkivitelben háromrétegű üveggel (3mm), melynek hőátadási együtthatója Ug=0,5 W/m²K.
- Hőátbocsátás az egész ablak felületén Uw = 0,78 W / m²K (háromrétegű üveg és melegperemes távtartó használata esetén).
- A jobb minőségű melegperemes távtartó keret, ami minimálisra csökkenti a bepárásodást, felár ellenében megrendelhető. MOST AKCIÓ: melegperemes távtartó keret felár nélkül.
- Az üvegezés 600 m tengerszint feletti magasságig alkalmazható. Amennyiben Ön magasabban fekvő területen használná, vegye fel velünk a kapcsolatot.
- Vállalatunk Bisnode Tanúsítványt kapott. A megbízható cégek listájába történő felvételünk garanciát jelent leendő ügyfeleinknek a biztonságos és korrekt együttműködésre. A Megbízható cég tanúsítvány ügyfeleink számára garantálja a pénzügyi biztonságot, a jó fizetési morált, a fizetőképességet és a megbízhatóságot.
- Tisztában vagyunk azzal, hogy mit kínálunk és meggyőződtünk termékeink minőségéről. Ezért szívesen állunk rendelkezésére annak a több mint 50.000 ügyfelünknek a referenciájával, akit Csehországban, Szlovákiában, Ausztriában, Németországban és Magyarországon ez ideig kiszolgáltunk.
Válasszon a raktáron lévő széles REHAU Smartline+ ablak kínálatunkból.
Részletesebb információk a REHAU Smartline+ és a REHAU Synego ablakokról
Vasalat
- A német Winkhaus által gyártott, teljes kerületen rögzítő vasalatrendszer (activPilot termékcsalád).
- A biztonsági pontok csökkentik az illetéktelen behatolás veszélyét, valamint növelik a felhasználó komfortérzetét.
- Hibás kezelést gátló biztosíték.
- Bukó-nyíló szárnynál mikroszellőzés vagy többállású (akár 5-állású) szellőzés.
- Nyolcszögletű zárócsap – gombafej (a gombafej elfordításával könnyen szabályozható a szorítás).
- Szárnyemelő modul (kissé megemeli a szárnyat, így az könnyen bezárható).
- Fékkel ellátott csapágy (szárny mozgását lassító dörzsfékkel felszerelt ollócsapágy).
- Két ellenlemez az illetéktelen behatolás ellen védő, alapfelszerelésként növeli az ablak biztonsági szintjét.
- Biztonsági pontok, melyek a gombafejjel együtt növelik az ablak illetéktelen behatolással szembeni ellenállását.
- Széleskörű állítási lehetőség ellensúlyozza az esetleges beépítési pontatlanságot.
- 25 000 ciklust igazoló tanúsítvány.
- Megerősített pántok (a szárnyak terhelhetősége akár 120 kg).
Tanúsítványok
Az ablakok és erkélyajtók vasalatrendszeréhez tartozó tanúsítvány A bejárati ajtók vasalatrendszeréhez tartozó tanúsítvány
Megjelenés
- A REHAU Smartline+ és a REHAU Synego AD ablakok megvásárolhatóak egyenes vagy lekerekített szárnyú kivitelben.
- A szárny lekerekített része elvezeti a vizet, így csökken a beázás esélye a heves esőzések folyamán.
- A REHAU Smartline+ ablakok a raktári készletből három színben elérhetőek (fehér, arany tölgy, antracit – indig az ablak külsején).
- Az online konfigurátorunk segítségével 28 szín választható a REHAU Smartline+ és a REHAU Synego AD ablakokhoz - 10 standard és 18 további.
- A standard színek (kivéve fekete ulti matt) szállítási ideje 21–28 nap, míg a felárasaké 4–6 hét.
Standard színek (Ablakdekor)
Feláras színek
Szigetelés
- 2 beültetett EPDM (etilén-propilén-dién-polimer) ütköző szigetelés.
- Az EPDM szigetelés előnye, hogy öregedéssel és időjárással szemben rendkívül ellenálló. Így az ablak több év múltán is szigetel.
- Fehér ablakok esetén elegáns szürke színű, más dekor esetében fekete színű szigeteléssel.
- A termék élettartama évtizedekben mérhető, és amennyiben idővel szükségessé válik a szigetelés cseréje, úgy az nagyon olcsón elvégezhető. Műanyag ablakaink speciális hornyainak köszönhetően az eredeti szigetelés egyszerűen kivehető az ablakból, utána pedig az új is könnyen behelyezhető a horonyba. Olcsó, gyors és egyszerű.
Merevítők
- A REHAU Smartline+ a REHAU SYNEGO AD ablakok és ajtók alapvetően teljes kerületük mentén, a tokban és a szárnyban is merevítőkkel vannak ellátva
- A merevítők anyaga minden esetben korrózióálló horganyzott acél
- A merevítők vastagsága kisméretű ablakoknál 1,25 mm, közepesen méretű ablakoknál 1,5 mm, nagyméretű erkélyajtóknál és rendszereknél 2 mm.
Katedrál üveg
- A konfigurátoron keresztül ezeket a katedrál üvegeket választhatja: fatörzs, csincsilla, delta, matt delta, tejüveg, matt homokfúvott, master carre, crepi, silvit.
- A katedrál üvegeken keresztül nem látni át, így pl. fürdőszobában is használható.
Kilincsek
- Minden termék mellé elegáns alumínium kilincset is küldünk. Fehér ablakok esetében a kilincs is fehér színű, belső dekor esetében pedig a kilincs színe az ablakéhoz igazított.
- A feláras lehetőségek között ezüst és bronz színű kilincseket is talál.
- gyerekzáras és kulccsal zárható kilincset is kínálunk.
Üvegközi álosztók
- A konfigurátoban felár ellenében álosztókat is választhat.
- Az alumínium álosztók több színben és szélességben is elérhetőek (8, 18, 26, 45 mm), illetve több felosztás közül választhat.
- Fehér, ezüs, arany és fa dekorral is választható.
- Háromrétegű üveggel ellátott ablak esetében csak egy üvegközti részbe helyezzük az álosztókat.
Profilrendszer REHAU SYNEGO MD
- A REHAU SYNEGO MD műanyag ablakokat csak a klasszikus változatban gyártják (egyenes szárral)
A német REHAU AG + Co cég által gyártott hétkamrás REHAU SY NEGO MD profil minden profilunk közül a legjobb szigetelési tulajdonságokkal rendelkezik. Különösen alacsony energiaigényű és a passzív épületekhez is ajánljuk.
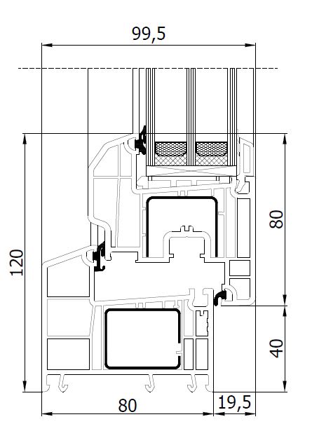
A REHAU SYNEGO MD ablakok alapvető jellemzői
- 7 kamrás profilrendszer a német REHAU AG + Co. KG cégtől
- Modern egyenes szárnyú megjelenés. Alapkivitelben lapos V-Perfect hegesztést használnak, amely erősebb (akár 25%), vizuálisan vonzóbb és kiküszöböli az anyag lebomlását, amely a hegesztés közben megjelenő UV sugárzásból adódhat.
- Építési mélység 80 mm.
- A háromrétegű üvegezés (Ug = 0,5 W/m²K) és a melegperemes, üvegközi keret alapfelszereltségként kerül forgalomba.
- Minden profilunk közül a legjobb szigetelési tulajdonságokkal rendelkezik, Uw = 0,77 W/m²K (az 1230 × 1480 mm méretű referenciaablakra vonatkozik).
- Hangszigetelés 34 dB (2,7 m²-es ablakhoz).
- Hármas tömítés – a kínálatunkban szereplő többi ablakkal ellentétben a REHAU SYNEGO MD profil központi tömítéssel is rendelkezik, amely növeli a szigetelő tulajdonságokat.
- 10 szín áll rendelkezésre. A kétoldalas dekoráció színes belső felülettel rendelkezik. Így mikor kinyitja az ablakot, nem a fehér színt, hanem a kiválasztott színhez legközelebb állót látja meg. A belső rész színe az ablak színéhez hasonló– antracit (szürke) az antracit és szürke ablakokhoz, barna az arany tölgy és világosbarna dekorokhoz, sötétbarna a mahagóni és sötétbarna ablakokhoz.
- A belső színdekorok esetében barna (bronz) kilincset adunk.
Standard színek
Vasalat
- Teljes körű ROTON NX szerelvények az német ROTO Frank Holding gyártótól, vagy Winkhaus activePilot vasalat.
- A biztonsági pontok csökkentik a betörés kockázatát, és növelik a tulajdonos kényelmét.
- Biztosíték a helytelen kezelés ellen.
- A bukó-nyíló ablakok esetében a mikroventiláció is biztosított.
- Nyolcszögletű zárócsap – gomba (könnyű regucsipke nyomás a gomba forgatásával).
- Szárnyemelő modul (kissé megemeli a szárnyat és biztosítja annak sima zárását).
- Csapágy fékkel (az ollócsapágy súrlódó fékkel van felszerelve, amely lelassítja a szárny mozgását).
- Alapfelszereltségként az ablakokhoz két betörésgátló biztonsági lemez jár, amelyek növelik az ablak biztonsági szintjét.
- A gombával együttműködő biztonsági pontok növelik az ablak betörési ellenállását.
- A szabályozás széles skálája kompenzálja a lehetséges telepítési pontatlanságokat.
- Megerősített zsanérok – szárny teherbírása akár 150 kg-ig.
- A szerelvényekkel kapcsolatos további információk ezen az oldalon találhatók.
Készreszerelés, ellenőrzések, tanúsítványok
Készre szerelése az osztrák GRUBER&CO Group modern automata gyártósorain történik.A DOVISTA saját ellenőrző intézettel rendelkezik. Naponta több alkalommal szúrópróba szerűen kiválasztásra kerül egy ablak, és ellenőrzik a paraméterei követelményeknek való megfelelését. (Profilrendszer elsődleges vizsgálata: mérettulajdonságok vizsgálata, tágulás vizsgálata magas hőmérséklet mellett kemencében, fagyáspont alatti hőmérsékleten végzett vizsgálat, alakellenőrzés, behajlás vizsgálat, felület-ellenőrzés, hegesztési szilárdság ellenőrzése, adott pontra irányuló erőhatás vizsgálat. Késztermék elsődleges vizsgálata: vízzáróság, légáteresztés, szélterheléssel szembeni ellenállás stb.).

.png)

.jpg)










































































