REHAU Smartline+ kétszárnyú mellékbejárati ajtók, jobbos 1280 x 2080

Termékkód:5371
Kategorie:Kétszárnyú
Szélesség:1280
Magasság:2080
Szárnyak száma:2
Szín:FehérFehér
Üveg:3/16A/4TPS kétrétegű szigetelő üveg (U=1,1)3/16A/4TPS kétrétegű szigetelő üveg (U=1,1)Katedrál üveg fatörzsKatedrál üveg fatörzs
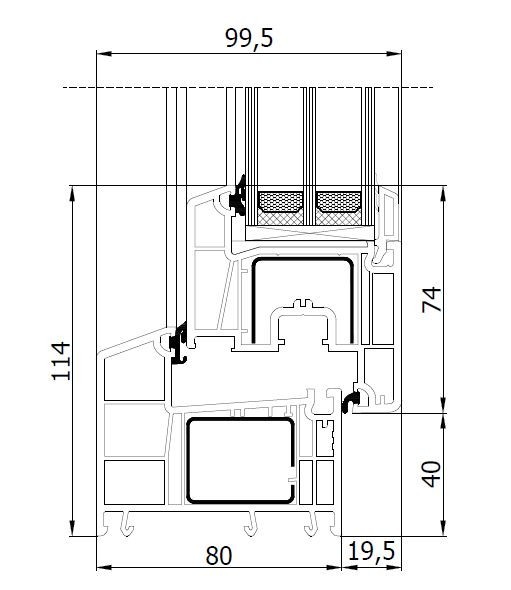
Műszaki ábra:Műszaki ábraAz ábra magyarázata
Vasalat:Winkhaus activPilot vasalatrendszer
Profilrendszert:német rendszer REHAU AG + Co.
Gyártó:a termék biztonságáért való felelősség: Kapcsolat
További információk megjelenítése

Raktári elérhetőség: 3 db

Azonnalelérhető

Amennyiben a raktáron lévő nyílászárókhoz tartozékokat is rendelt (reluxát, szúnyoghálót vagy ablakpárkányt), amelyeket az adott mérethez gyártunk, a szállítási idő általábban 10 nappal meghosszabodik. Szállítási határidők
353 430 HUF ÁFÁ-val

278 291 HUF ÁFA nélkül

A „Vásárlás“ gombra kattintva úgy helyezi a kosárba az ablakot, hogy nem fog tudni hozzávásárolni tartozékokat (redőnyt, szúnyoghálót vagy ablakpárkányt)

Műanyag mellékbejárati ajtó - átjáró szélesség 1140 mm

A REHAU Smartline+ kétszárnyú mellékbejárati ajtók alkalmasak a kertbe, garázsba való bejutáshoz vagy üzletek és raktárak hátsó bejárataként. Családi házak esetében hagyományos bejárati ajtóként is használható, de nem ajánlott középületekbe vagy társasházakba, ahol nagyobb a mozgás gyakorisága. A főbajárati ajtóhoz képest, amelyet a konfigurátoron keresztül megrendelésre szállítunk, olcsóbb, de nem rendelkezik széles szárnnyal, és csak befelé nyítható. A mellékbejárati ajtót a következő méretekkel kínáljuk: szélesség 128 cm, magasság 208 cm, átjáró szélesség 114 cm.

Mindkét oldaluk fehér. A kilincse és a pánttakarók szintén fehérek. Az ajtó hőátbocsátási tényezője Uw=1,4 W/m²K.

Amennyiben más dekorációra, más méretre, három rétegű üvegezésre vagy díszüvegre van szüksége, rendelje meg a konfigurátoron keresztül).
 
Műanyag bejárati ajtók

Általános felszereltség:

  • többpontos vasalat,
  • keret,
  • kétoldalas arretáló kilincs (ennél a kivitelnél nem lehet kilincs-gomb változatra cserélni),
  • alacsony alumínium küszöb (mint a normál bejárati ajtóknál),
  • 3 kulccsal ellátott zár,
  • befelé nyíló kivitel,
  • „Műanyag ablakok, ajtók és tartozékok használati útmutatója“ dokumentum.

Výplně

  • A vízszintes keretmerevítő alatt teljes PUR betét (rajzon szürkével jelölt felület).
  • Keresztmerevítő felett középen két fatörzs mintázatú átlátszó üvegtábla, U=1.1 (rajzon kékkel jelölt felület).

Gyártás és profilrendszer:

  • 5 kamrás német REHAU AG + Co. profilrendszer
  • A horganyzott acél megerősítések biztosítják az ablakok merevségét és stabilitását.
  • Építési mélység 80 mm, a keskenyebb profilok több fényt biztosítanak.
  • Klasszikus kialakítás - a szárnyak és a keretek modern, egyenes megjelenésűek (a készleten lévő ajtók klasszikusak, ha a lekerekített formát részesíti előnyben, rendelje meg a konfigurátoron keresztül).
  • Nagyon jó hőszigetelés - standard dupla üvegezés esetén a teljes ajtón keresztüli hőátbocsátási tényező Uw=1,4 W/m²K (ha jobb hőszigetelési tulajdonságokra van szüksége, rendelje meg a REHAU Smartline+ ajtókat a konfigurátoron keresztül).
  • Betörés elleni kétpontos védelem
A német REHAU AG + Co. 5 kamrás profilrendszere
 
Műanyag bejárati ajtók tömítése és profilja

Szigetelés

  • 2 beültetett EPDM (etilén-propilén-dién-polimer) szürke ütköző szigetelés. 
  • az EPDM szigetelés előnye, hogy öregedéssel és időjárással szemben rendkívül ellenálló. Az ablakok így évek múlva is szigeteltek.
  • a termék élettartama évtizedekben mérhető, és amennyiben idővel szükségessé válik a szigetelés cseréje, úgy az nagyon olcsón megoldható. Műanyag erkélyajtóink speciális hornyainak köszönhetően az eredeti szigetelés egyszerűen kivehető és az új szigetelés könnyen behelyezhető. Olcsó, gyors és egyszerű.

Merevítés:

  • A bejárati ajtó alapkivitelben erősítésekkel van felszerelve, amelyek mind a tokba, mind a szárnyba be vannak építve.
  • A merevítések anyaga korrózióálló horganyzott acél.
  • A merevítés vastagsága 1-2 mm (mérettől, típustól és kiviteltől függően).
Bejárati ajtók merevítése
Műanyag mellékbejárati ajtó üvegezése

Üvegezés

  • A termék a DOVISTA csoport vagy a brit Pilkington márka szigetelőüvegével van felszerelve.
  • Standard kététegű üvegezés Ug=1,0/1,1 W/m²K hőáteresztési tényezővel.
  • Új hangszigetelt üveg - 33 dB.
  • Az üvegezés 600 méteres tengerszint feletti magasságig alkalmas a beépítésre. Nagyobb magasságban történő beépítés esetén kérjük, vegye fel a kapcsolatot ügyfélszolgálatunkkal.

Vasalat

  • Winkhaus (activPilot termékcsalád) gyártású teljes kerület mentén található német vasalatrendszer
  • Biztonsági pontok csökkentik az illetéktelen behatolás veszélyét és növelik a felhasználó kényelmét.
  • Hibás működtetést gátló biztosíték.
  • Nyolcszögletű zárócsap - gombafej (a gombafej elfordításával könnyen szabályozható a szorítóerő).
  • Fékező csapágy (dörzsfékkel ellátott ollócsapágy, mely lelassítja a szárny mozgását).
  • Az illetéktelen behatolás elleni védelmet biztosító két biztonsági ellenlemez alapfelszerelésként növeli az ablakok biztonsági szintjét.
  • Széles szabályozási terjedelem az esetleges beépítési pontatlanság ellensúlyozására.
  • Megerősített pántok (szárnyak teherbírása akár 120 kg).
Mellékbejárati ajtók vasalata
Tanúsítványok

Készreszerelés, ellenőrzés, tanúsítványok:

  • a készreszerelés az osztrák GRUBER&CO Group vállalat modern automatizált gyártósorain történik.
  • A Dovista cégcsoport saját ellenőrző intézettel rendelkezik. Naponta több alkalommal szúrópróba szerűen kiválasztásra kerül egy ablak, és ellenőrzik a paraméterei követelményeknek való megfelelését. (Profilrendszer elsődleges vizsgálata: mérettulajdonságok vizsgálata, tágulás vizsgálata magas hőmérséklet mellett kemencében, fagyáspont alatti hőmérsékleten végzett vizsgálat, alakellenőrzés, behajlás vizsgálat, felület-ellenőrzés, hegesztési szilárdság ellenőrzése, adott pontra irányuló erőhatás vizsgálat. A késztermék elsődleges vizsgálata: vízzárás, légáteresztés, szélállóság stb.).
  • A vállalat a termékek minőségét egy független állami vizsgáló laboratóriummal is ellenőrizteti, amely megerősíti az általunk szállított termékek minőségét és paramétereit (lásd a jelenlegi tanúsítványokat).
  • Tisztában vagyunk azzal, hogy mit kínálunk, meggyőződtünk termékeink minőségéről. Ezért szívesen állunk rendelkezésére annak a több mint 50.000 ügyfelünknek a referenciával, akiket Csehországban, Szlovákiában, Ausztriában, Németországban és Magyarországon ez ideig kiszolgáltunk.

Kérdéssel fordulna hozzánk?

Mutatjuk a leggyakoribb kérdéseket

Értékelje a terméket: 

Összesített értékelés

0 %
A terméket még senki nem értékelte

Beszélgetések, hozzászólások és vélemények a termékről

Eddig még nem érkezett róla hozzászólás

Garanciát vállalunk az Ön elégedettségére

 5 országban már teljesítettünk 77 000 megrendelést

És több mint 265 000 ablakot és ajtót

“A rendelésemet ( 94/23/233 ) pontosan, a lehető leggyorsabban megkaptam, annak ellenére, hogy klf-i raktárból kellett beszerezni.”

Mihály T.

Kijelző

“Kedves Rita! Mikor rátaláltam az “Ablakok-raktárról” nevű nyílászárókkal foglalkozó cégre, levelezések, és telefonos beszélgetések,...”

A. Babi

Kijelző

“Tisztelt Cím ! Az Önökkel való együttműködés egy 10-es skálán nagyon is 10-es volt. Köszönöm a korrekt, udvarias, gyors hibátlan tájékoztatást,...”

E. Szab

Kijelző

“Üdv! agyon elégedett vagyok, Google keresőben találtam Önökre, megfelelő árak voltak, először telefonon érdeklődtem kollégájuk segítőkész volt,..”

V. Dániel

Kijelző